Список Продуктов
Обработка окружающей среды Зерно / завод для очистки
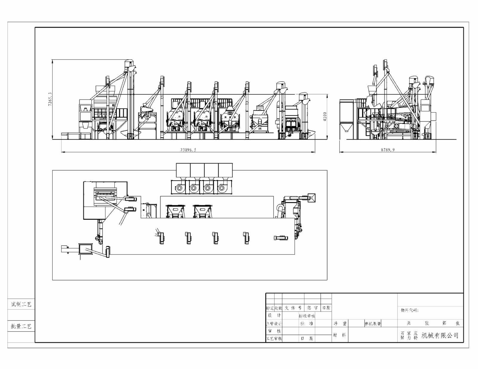
Описание
Экологическая линия переработки зерна состоит из очистителя семян, магнитный сепаратор, де-стоунер, гравитационный сепаратор, шлифовальные машины, вибрация грейдер и упаковочной машины.Особенности
1. Различные комбинации оборудования для многоцелевого в соответствии с конкретными требованиями клиента.2. Завод очистки окружающей среды зерна предназначен для всех зерна, очистки и обработки семян.
3. Доступная емкость (подсчитываются бобы): 3, 5 и 10 т / час.
4. Удобное управление с панели управления мощностью.
English
Russian
Spanish
French



